Tbd W 2nd Street, Rush City, MN

$99,900

1.35

Acres

About Tbd W 2nd Street

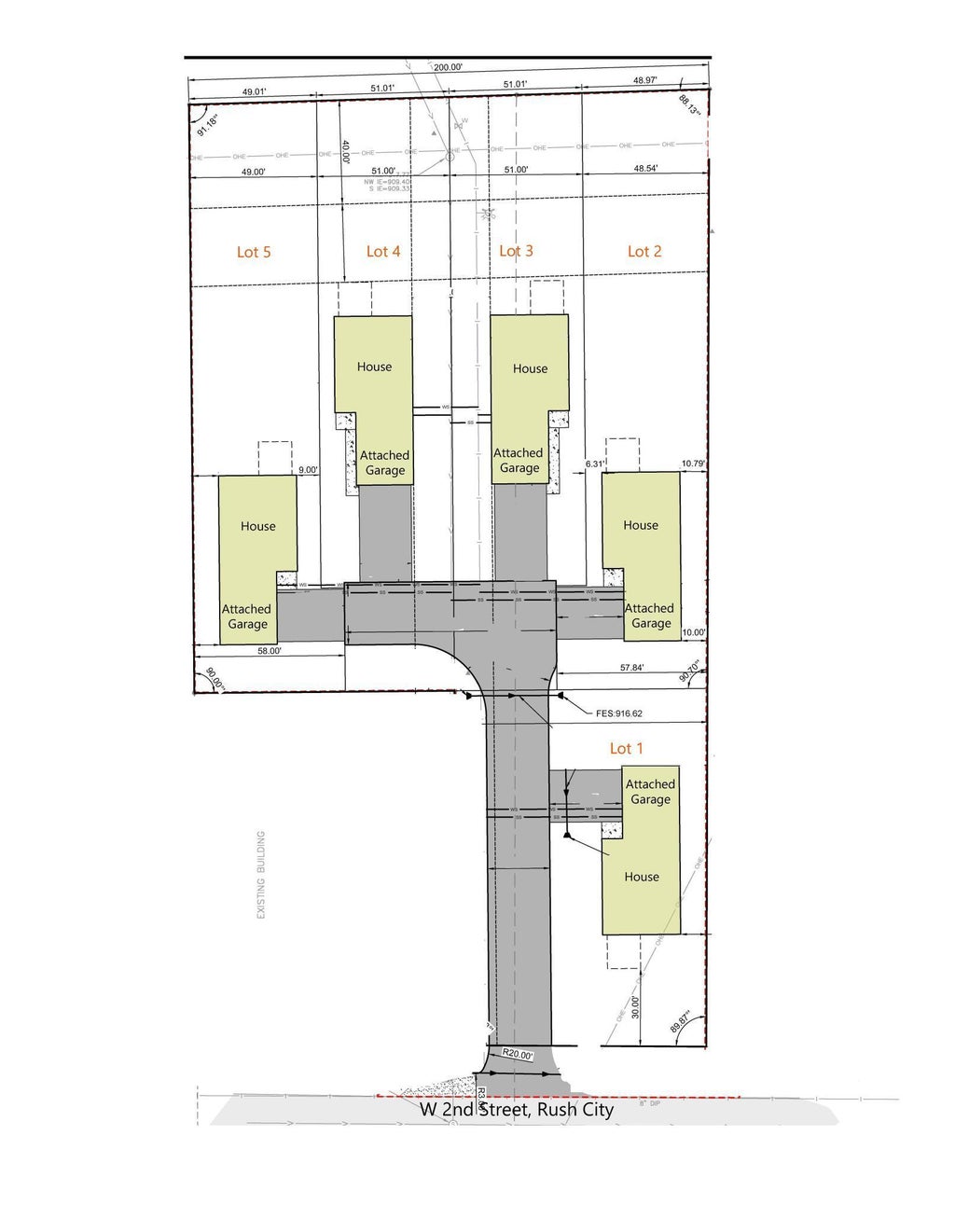
Discover Pinecrest Villas—a thoughtfully planned unit development approved by the City of Rush City. With five available lots, you’ll have the opportunity to design a home that perfectly suits your lifestyle. These lots feature no association fees, a shared private driveway with a maintenance agreement, and city water and sewer. Whether you’re looking to build your dream home or create an investment rental property, everything is in place—just finalize the developer’s agreement and get started. Pinecrest Villas offers a unique chance to build or invest in a growing community, conveniently located near the freeway, city water park, and schools. Plans are available for each lot or bring your own design to life. Extra lot is available to purchase with home or will be contingent on the home sale taking place first.

Features of Tbd W 2nd Street

MLS® # 6777450
Price $99,900
Acres 1.35
Type Land
Status Active
Contingency Type None

Community Information

Address Tbd W 2nd Street
Subdivision Pinecrest Villas
City Rush City
County Chisago
State MN
Zip Code 55069

Amenities

Is Waterfront No
Has Pool No

Interior

Fireplace No
Has Basement No

Exterior

Lot Description Irregular Lot, Many Trees

School Information

District Rush City

Additional Information

Zoning Residential-Multi-Family,Residential-Single Family
Foreclosure No
Short Sale No
Taxes $338
Tax Year 2024
Office Realty Executives Top Results

Listing Details

OfficeRealty Executives Top Results

Interested in this property?

Request Showing

Listing Map

Request a Showing

Provide a valid email address.
When would you like to view this property?